




濟南北方金鋒鋸業有限公司
聯系人:張經理
手機:18615568388
電話:0531-81170001
郵箱:jinfengjuye@163.com
地址:山東省濟南市濟陽區泰興西街1-1號
詳細信息
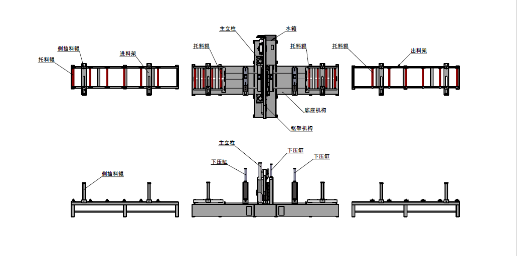
GS600型數控鋸床參數:
(1)最大鋸切能力:∅600mm □H600×w600mm
(2)主電機功率:5.5KW, 液壓電機功率:2.2kw, 冷卻電機功率:120kw
(3)鋸帶速度25/36/54/75m/min(塔輪調速)
(4)鋸帶規格:6300×41×1.3mm
(5)控制方式;PLC控制,液壓驅動。光柵尺讀數。
(6)機床外形尺寸約:3100×3000×4000mm
(7)機床重量約:3.8T
性能特點:
(1).采用雙圓柱,雙油缸,雙加緊,雙下壓,夾緊力更強,尤其是整束鋸切時,保證有足夠的夾緊力。
(2).全自動數控鋸床,適用于批量生產連續切割。單次最大送料行程1.2米,重復送料精度0.2mm.
(3).采用PLC控制系統,可設置一組或幾組數據連續切割,自動手動互換。
(4).采用光柵尺控制送料長度,單次最大送料行程1.2米,超過1.2米長度可分多次送料。
(5)專為切割矩形管而設計的,鋸條與工作臺之間有2-3°的傾斜角,提高了生產效率與切割精度,更延長了鋸條的使用壽命。
(6)鋸條前后各一套送料床臺,后床臺送到位后,如果還不到設定尺寸,再由前床臺往前拉,如果還不夠接著再由后床臺往前送,如此循環,直至送夠所需長度開始鋸切。
(7)床身及料道,進料出料兩側配有立式滾筒,可根據所切料的寬度調整,方便整束切割時導向
(8)進出料道各有四米長滾筒料架。
GS600型數控鋸床設備圖片:


GS600型數控鋸床產品展示:



產品出自于:http://www.xjyzs.cn/proshow-13385.html
[返回] 非標鋸床